產品中心
聯系我們

諸城市博宇環保設備有限公司
聯系人:王 總 13465687500
李經理 13793683143
電 話:0536-6082711
傳 真:0536-6097151
郵 箱:byhbsb@126.com
鏈板式刮泥機


SCP型鏈板式刮泥機主要用于污水處理廠中平流式沉淀池、沉砂池、隔油池的底部進行連續排泥,并可在水面連續排除油污或去除浮渣,尤其適合沉淀物較多的沉淀池。

SCP型鏈板式刮泥機主要由驅動裝置、主動輪組、導軌及托架、刮板組合、從動輪組、鏈條漲緊機構、集渣管等部件組成。
SCP型鏈板式刮泥刮渣機運行時,由鏈條帶動刮板在池中做連續的回轉運動,將池底的污泥刮至集泥槽中,并可刮除池面的浮油或浮渣。

1.若刮板受異物卡塞或積泥過多時,自控系統中過扭保護機構則會切斷電源,自動停機報警。
2.設備運行平穩,可避免對沉淀物的擾動。
3.刮泥、刮渣裝置為一體,使整機結構簡單,占用空間少。
4.驅動裝置固定在池邊平臺上,安裝、維修方便。

型號說明

外型圖
1.集油管 2. 從動輪組 3. 從動輪組 4.刮板組合 5.導軌及托架 6.漲緊軸總成 7.主動輪組 8.鏈條漲緊機構 9.驅動裝置

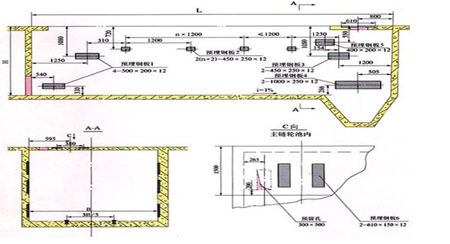
池型結構圖


型 號 | SCP 3×L | SCP 4.5×L | SCP 5×L | SCP 6×L |
池 寬B(m) | 3 | 4.5 | 5 | 6 |
推薦池長L(m) | 8~30 | 8~30 | 8~30 | 8~30 |
推薦池深H(m) | 3.5 | 3.5 | 3.5 | 3.5 |
驅動功率(Kw) | 1.5~3kw | 1.5~3kw | 1.5~3kw | 1.5~3kw |
刮板移動速度(m/min) | 1 | 1 |
|
|
刮板間距(m) |
|
|
|
|
- [news:P_xianchang]
-
{aspcms:comment}








